Sales office opening times
- Monday - Friday 9am - 5.30pm.
- Weekends by appointment only.
For more details please call:
01494 258 888Chalfont Dene, Chalfont St Peter, Buckinghamshire
£815,000
MMF and DMC fees apply
Available
For more details please call:
01494 258 888Chalfont Dene, Chalfont St Peter, Buckinghamshire
£815,000
MMF and DMC fees apply
Available
For more details please call:
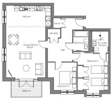
01494 258 888A spacious, light and bright two-bedroom, first floor apartment The property benefits from a large, dual aspect kitchen/lounge which allows sunlight to flood in. The French doors open onto a south facing balcony. The main bedroom has built-in double wardrobes and an en-suite shower room.
Guest bedroom has built-in wardrobes and fitted dressing/office table. The apartment has a fully equipped SieMatic kitchen with integrated Neff appliances including Neff fridge/freezer, Neff fan assisted oven, hob, dishwasher and washer/dryer
Kitchen/Living/Dining Room: 8.54m x 4.66m (28'0" x 15'4")
Bedroom 1: 4.34m x 2.93m (14'3" x 9'8")
Bedroom 2: 3.43m x 3.30m (11'3" x 10'10'")
Terrace (approx): 3.57m x 1.84m (11'9" x 6'1")
Audley is acting on behalf of the Audley owner or vendor to sell this property.
Audley Chalfont Dene is a luxury retirement village consisting of 142 luxury apartments and cottages, all surrounded by extensive landscaped grounds. Just minutes from nearby Chalfont St Peter in Buckinghamshire, Chalfont Dene benefits from being on the edge of the beautiful Chiltern Hills, but yet being connected to London and Birmingham via road and rail links.
At the heart of the village is Chalfont House, a striking central building designed to replicate the Arts & Crafts style of the local architecture. Located within Chalfont House is the Audley Club with its restaurant, bistro, swimming pool, treatment rooms and gym.
ADDITIONAL AMENITIES As an owner at Audley Chalfont Dene you will automatically become a member of the Audley Club. This membership entitles you to use the facilities, including the restaurant, bistro bar, health and well being centre, fitness suite and swimming pool. There are also regular resident-only swimming sessions and a library.
Flexible care packages are available through Audley Care if required.
Audley Chalfont Dene
Rickmansworth Lane
Chalfont St Peter
Buckinghamshire
SL9 0EH
What3words: ///owner.overnight.copy
Call us: 01494 258 888
Email us: chalfontsales@audleyvillages.co.uk
TENURE Leasehold for a term of up to 250 years. The monthly management fee for the year ending 1st March 2026 is £1,350.71 per calendar month, which includes a credit of £82.21 in the restaurant/bistro bar.
A deferred management charge also applies to this property.
GENERAL: The measurements in these particulars are approximate and have been provided for guidance purposes only. The internal photographs used in these particulars are reproduced for general information and it cannot be inferred that any item is included in the sale.
PLEASE NOTE: The extent of the property and its boundaries are subject to verification by inspection of the title deeds.
Flexible Audley Care packages are available at an additional cost.